C.4.1 壁挂安装尺寸

image.png

图 C‑4 380V 30-37kW 壁挂安装示意图

image.png

图 C‑5 380V 45-75kW 壁挂安装示意图

 

image.png

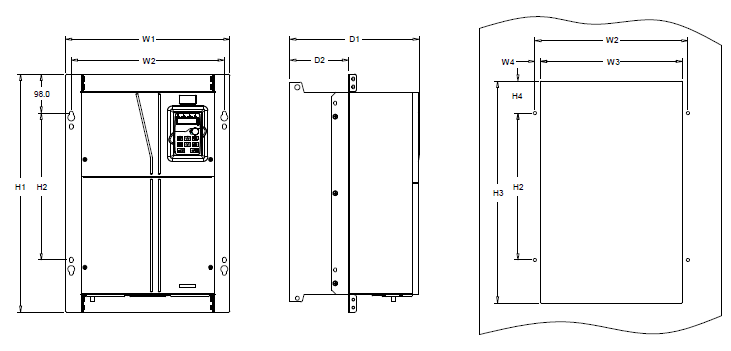
图 C‑6 380V 90-110kW壁挂安装示意图

image.png

图 C‑7 380V 132-200kW壁挂安装示意图

 

image.png

图 C‑8 380V 220-315kW壁挂安装示意图

 

表 C‑1 380V壁挂安装尺寸表(单位:mm)

变频器规格

W1

W2

W3

H1

H2

D1

安装孔径

固定螺钉

30kW~37kW

250

230

-

400

380

223

6

M5

45kW~75kW

282

160

226

560

542

258

9

M8

90kW~110kW

338

200

-

554

535

330

10

M8

132kW~200kW

500

180

-

870

850

360

11

M10

220kW~315kW

680

230

-

960

926

380

13

M12

C.4.2 法兰安装尺寸

image.png

图 C‑9 380V 30-75kW法兰安装示意图

 

image.png

图 C‑10 380V 90-110kW法兰安装示意图

image.png

图 C‑11 380V 132-200kW法兰安装示意图

 

表 C‑2 380V法兰安装尺寸表(单位:mm)

变频器规格

W1

W2

W3

W4

H1

H2

H3

H4

D1

D2

安装

孔径

固定

螺钉

30kW~37kW

316

300

274

13

430

300

410

55

223

118.3

6

M5

45kW~75kW

352

332

306

12

580

400

570

80

258

133.8

9

M8

90kW~110kW

418.5

389.5

361

14.2

600

370

559

108.5

330

149.5

10

M8

132kW~200kW

500

180

480

60

870

850

796

37

360

178.5

11

M10

 

C.4.3 落地安装尺寸

image.png

图 C‑12 380V 220-315kW落地安装示意图


image.png

图 C‑13 380V 355-500kW落地安装示意图

 

表 C‑3 380V落地安装尺寸表(单位:mm)

变频器规格

W1

W2

W3

W4

H1

H2

D1

D2

安装孔径

固定螺钉

220kW~315kW

750

230

714

680

1410

1390

380

150

13/12

M12/M10

355kW~500kW

620

230

572

-

1700

1678

560

240

22/12

M20/M10

 



上一章节 下一章节